hr en de

Osnovna škola - Vukovina, Energetska obnova

Povratak

Naziv projekta

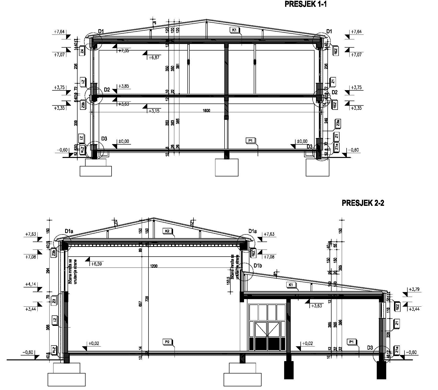
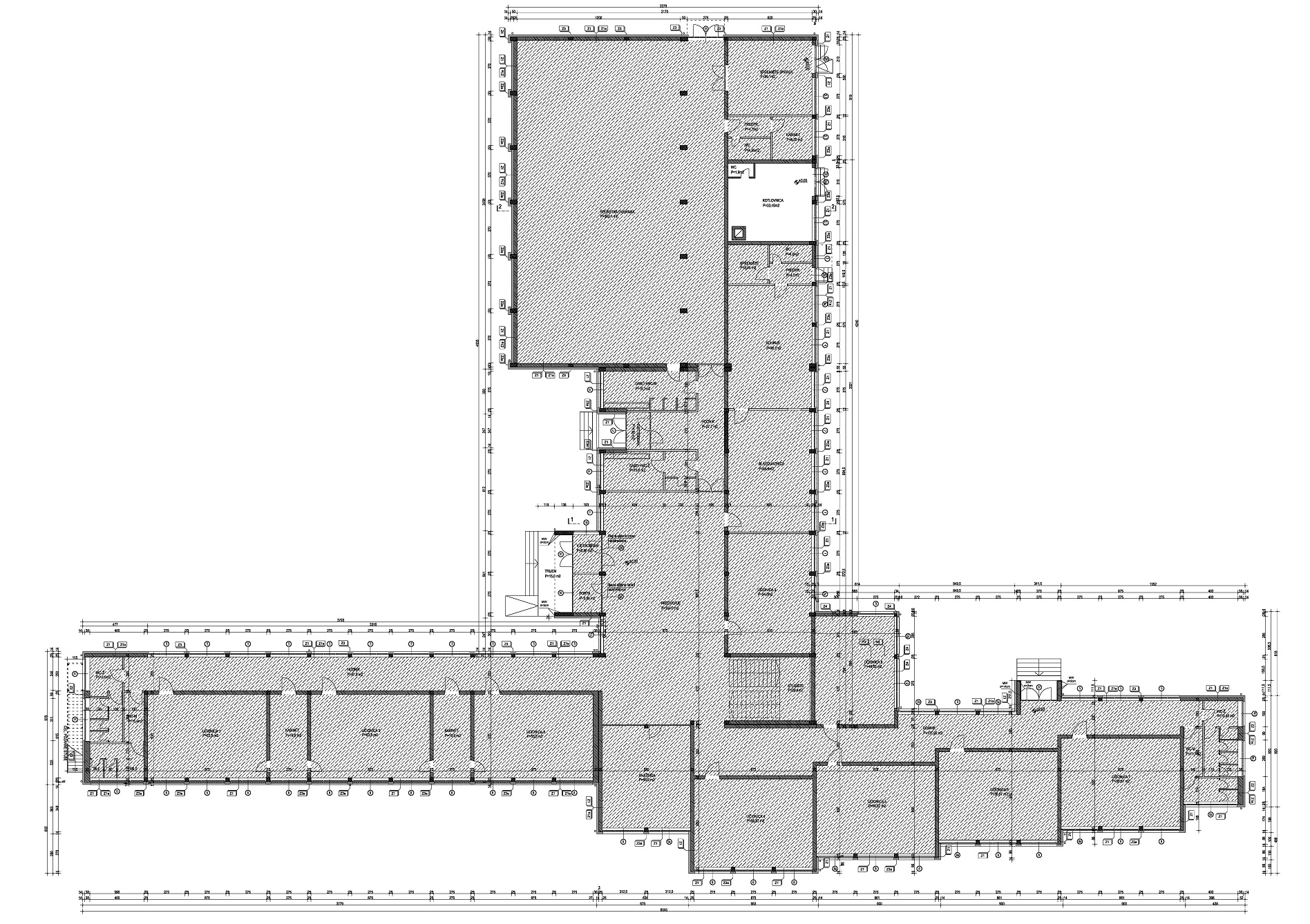
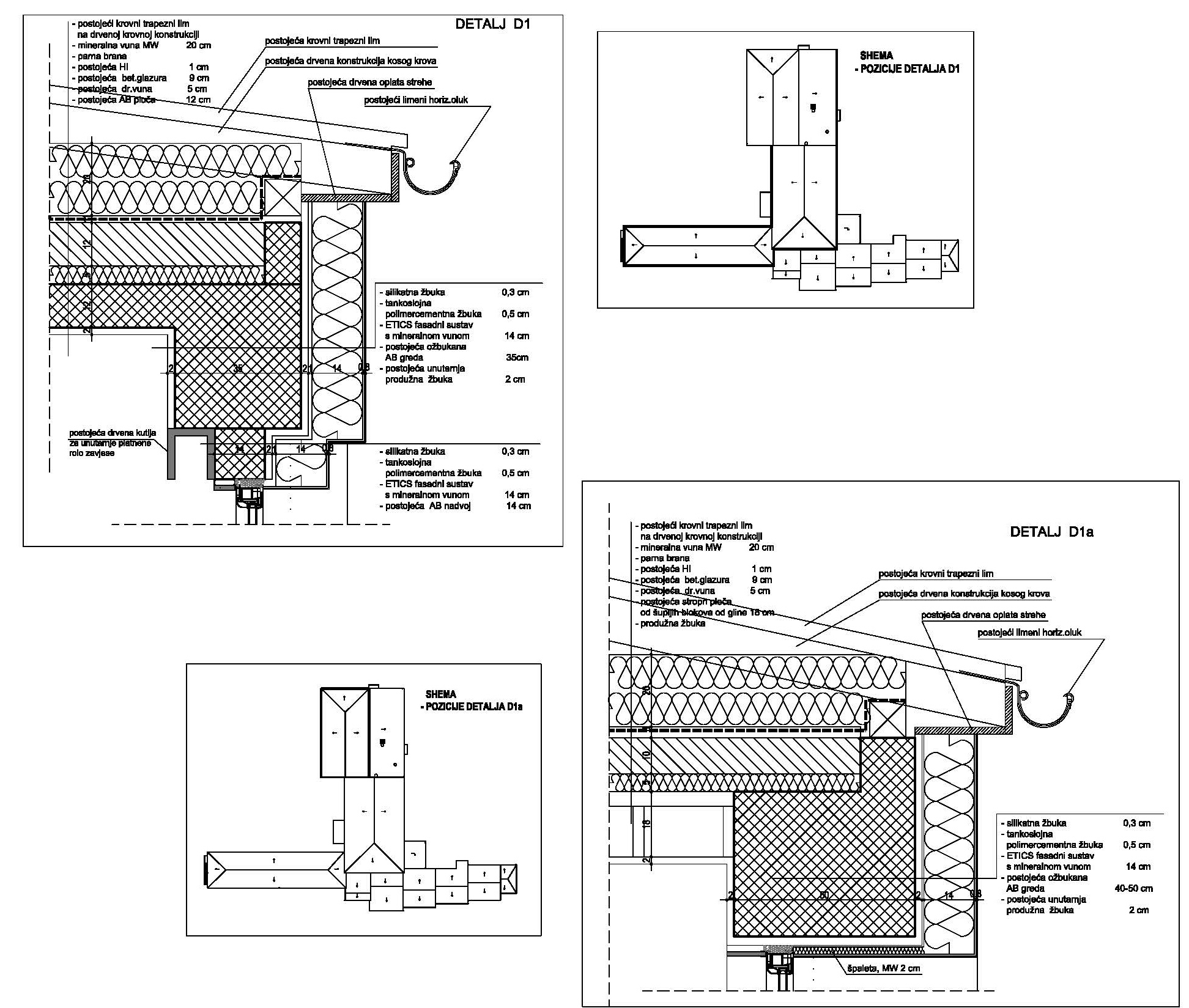
Osnovna škola - Vukovina, Energetska obnova

Naziv investitora/klijenta

S.P.A.C.E d.o.o.

Lokacija građevine

Vukovina, Velika Gorica

Namjena građevine

Obrazovno - odgojna

Veličina građevine (cca Brutto površina)

2.802 m2

Opis opsega projektiranja/usluge

Projektant suradnik na izradi projektne dokumentacije glavnog projekta energetske obnove građevine.

Godina izrade projekta

2014.

Godina realizacije/izgradnje građevine