hr en de

Stambena vila s bazenom - Šestine

Povratak

Naziv projekta

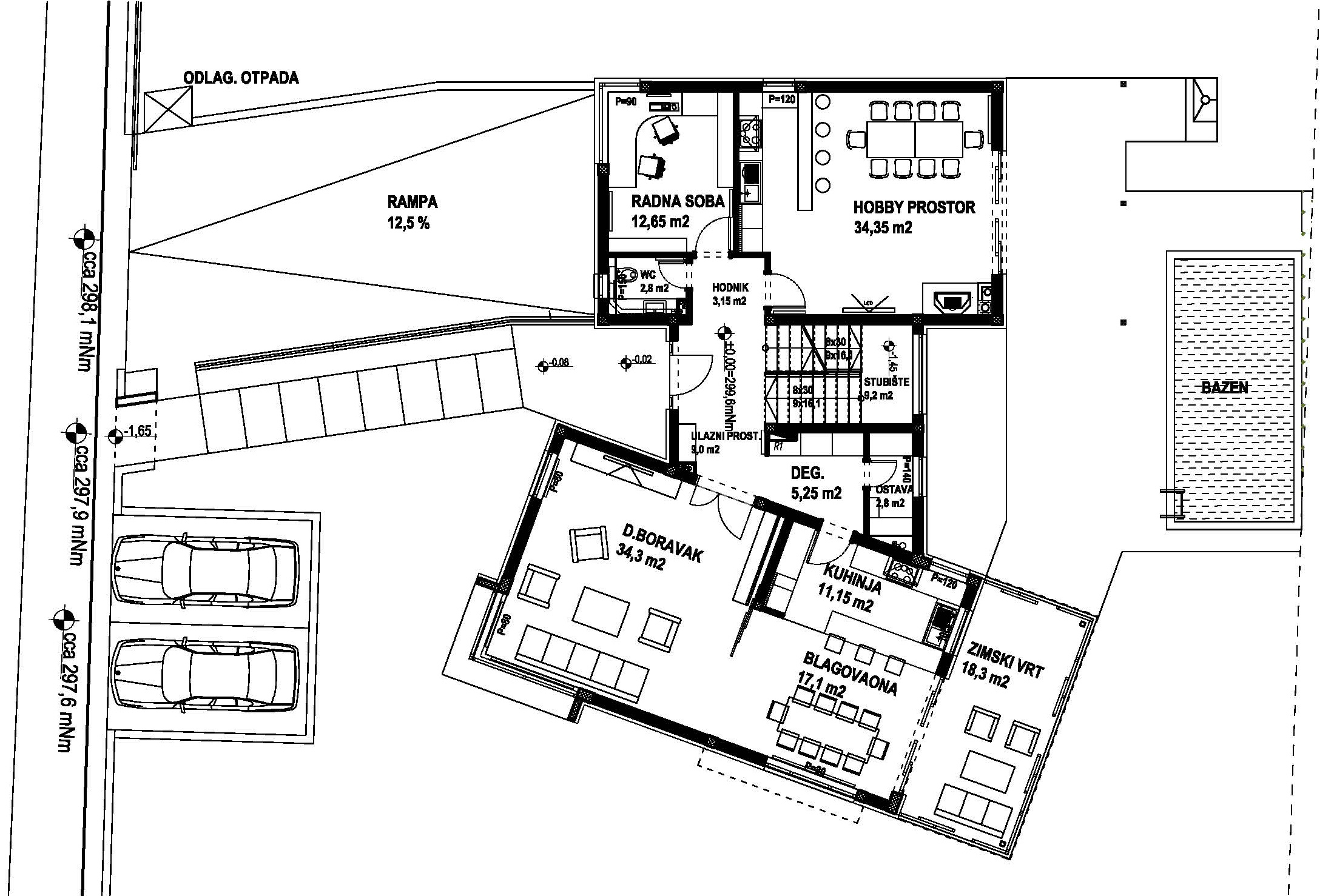
Stambena vila s bazenom - Šestine

Naziv investitora/klijenta

Privatni investitor

Lokacija građevine

Šestine, Zagreb

Namjena građevine

Stambena

Veličina građevine (cca Brutto površina)

500 m2

Opis opsega projektiranja/usluge

Autor idejnog arhitektonskog rješenja. Izrada glavnog i izvedbenog arhitektonskog projekta građevine.

Godina izrade projekta

2013.

Godina realizacije/izgradnje građevine

2013.