hr en de

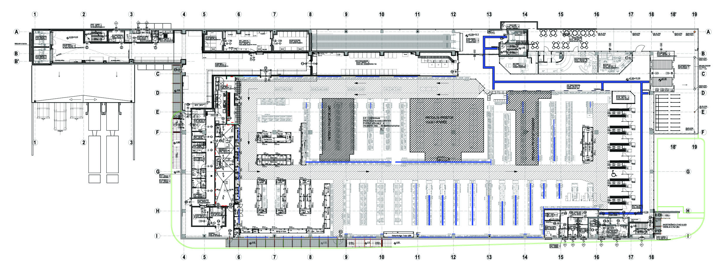
Trgovački centar Kaufland - Šibenik

Povratak

Naziv projekta

Trgovački centar Kaufland - Šibenik

Naziv investitora/klijenta

Kaufland Hrvatska k.d.

Lokacija građevine

Šibenik

Namjena građevine

Trgovačko - poslovna

Veličina građevine (cca Brutto površina)

9.500 m2

Opis opsega projektiranja/usluge

Glavni projektant na izradi projektne dokumentacije; autor idejnog arhitektonskog projekta, izrada glavnog i izvedbenog projekta građevine. ( za Profectus Projektiranje d.o.o. )

Godina izrade projekta

2012.

Godina realizacije/izgradnje građevine

2013.